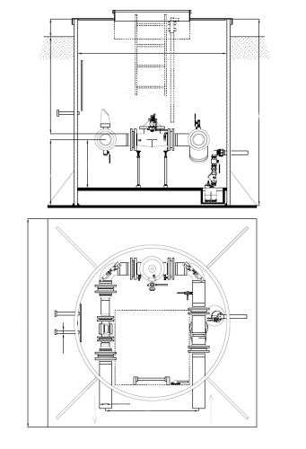
Vår tryckreduceringsbrunn är framtagen för att leverera stabilt och pålitligt vattentryck, samtidigt som konstruktionen är byggd för lång livslängd och enkel service. Den robusta designen i massiv PE-plast med förstärkt dubbelbotten ger säker drift även under högt grundvattentryck.
I det här exemplet presenteras en Ø2000 x 2500 mm PE tryckreduktionsbrunn. Den är utrustad med en ventil för tryckreduktion, flödeskontroll samt praktiska service- och säkerhetskomponenter såsom länspump och alu-stege. Tillsammans skapar detta en komplett och hållbar lösning för vattenförsörjning
Fördelar:
Kundanpassad lösning – designas utifrån projektets specifika behov.
Robust konstruktion – 45 mm godstjocklek och stålförstärkt botten motstår deformation.
Driftssäkerhet – avancerade ventiler och mätinstrument för stabilt tryck.
Exempel, inte standard
Detta är ett exempel på en levererad lösning. Varje tryckreduktionsbrunn anpassas individuellt tillsammans med kunden för att säkerställa rätt dimensionering, funktion och utrustning.
Kontakta oss gärna för att få ett förslag på utförande och offert.







