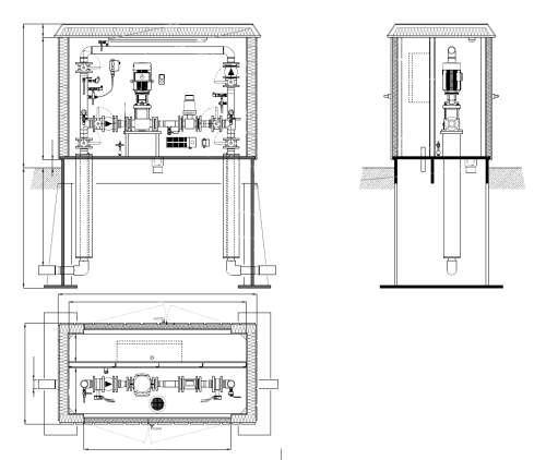
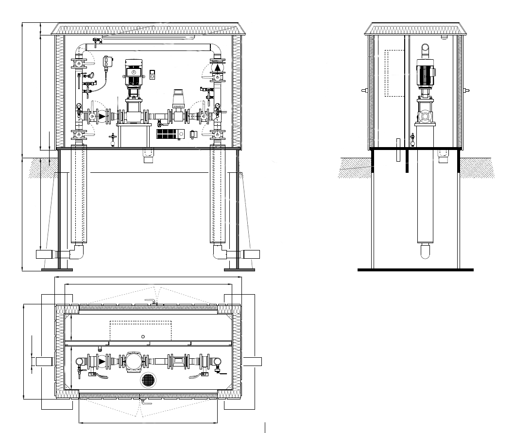
Detta är ett exempel på en komplett tryckstegringsstation installerad i ett robust teknikhus. Lösningen visar hur en pumpstation kan byggas upp för att säkra stabilt vattentryck, med nödvändiga funktioner för övervakning, drift och säkerhet. Exemplet omfattar bland annat pumputrustning, ventiler, flödes- och tryckmätare samt skydd mot frost och vattenskador
Precis som vid andra projekt är detta inte en färdig standardmodell, utan en illustration av vad som är möjligt. Varje anläggning har olika behov, och vi erbjuder därför möjligheten att anpassa lösningen helt efter era specifikationer – oavsett om det gäller kapacitet, komponentval, material eller extra funktioner.
Med fokus på driftsäkerhet och lång livslängd skapar vi lösningar som är både kostnadseffektiva och enkla att underhålla.
Teknikhuset levereras komplett, färdigmonterat och redo för anslutning till el och vatten.
Kundanpassat teknikhus kontakta oss gärna för att få ett förslag på utförande och offert.







